Logotype TOUT L'IMMOBILIER ONDRES

Maison neuve 4 pièces en vente à Boucau

HAUT BOUCAU - Maison T4 Neuve avec garage

Maison 4 Pièce(s) 395 000 € 82,5m² 4 788 €/m² Réf. 2226 M1
Ce bien vous intéresse ? Contactez-nous !
Description
HAUT BOUCAU - Maison T4 Neuve avec garage Boucau

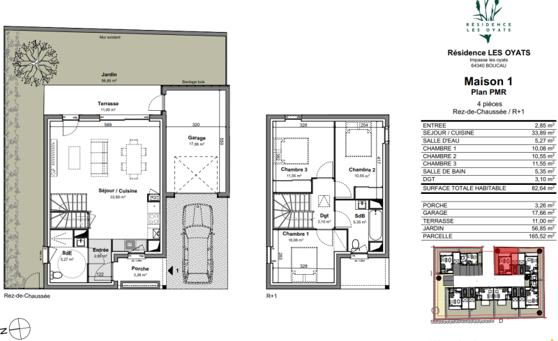
Dans un petit lotissement de 7 maisons et deux appartements, A vendre Maisons neuves T4 et T5 avec garage, en pleine propriété. Elles sont situées dans un envirronement pavillonaire calme, proche des commerces et écoles, desservit par les transports en commun
Cette maison T4 , se compose au RDC d'une entrée placards, WC, salle d'eau, séjour avec coin cuisine ouverte de 35m2 environ, terrasse de 11m2, garage de 18m2 , jardin, parking extérieur privatif, à l'étage 3 chambres, salle de bain, WC.
Livraison 2ème trimestre 2024

Taxes & charges
Frais d'agence 19750 €
Diagnostics immobiliers
Consommation énergétique
A - 25
Emission de gaz à effet de serre
A - 2
Mise à jour le 18/04/2024
+33 (0)5 59 45 14 32 direction@toutlimmo.net

En poursuivant votre navigation sur ce site, vous acceptez l'utilisation de cookies afin de réaliser des statistiques d’audience. Voir la politique de confidentialité .

Accepter Refuser +