Logotype TOUT L'IMMOBILIER ONDRES

Maison neuve 4 pièces en vente à Boucau

HAUT BOUCAU - Maison T4 Neuve avec Garage

Maison 4 Pièce(s) 405 000 € 85m² 4 765 €/m² Réf. 2226M4
Ce bien vous intéresse ? Contactez-nous !
Description
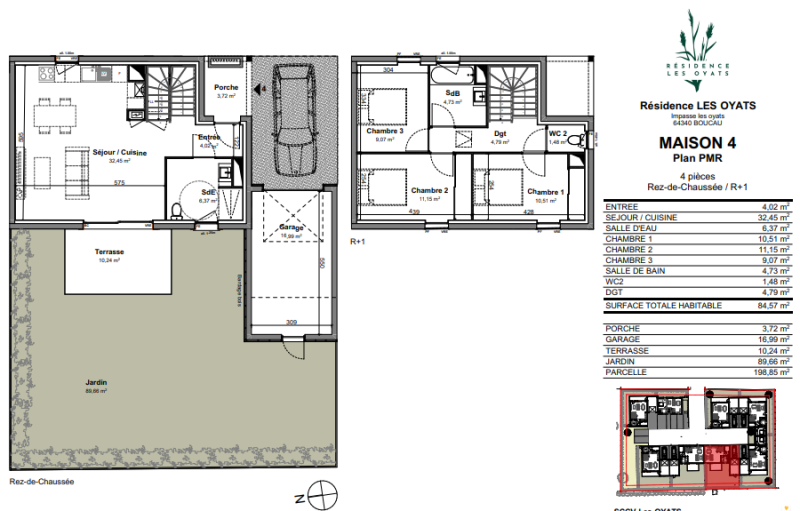
HAUT BOUCAU - Maison T4 Neuve avec Garage Boucau

Dans un petit lotissement de 7 maisons et deux appartements, A vendre Maisons neuves T4 et T5 avec garage, en pleine propriété. Elles sont situées dans un envirronement pavillonaire calme, proche des commerces et écoles, desservit par les transports en commun
Cette maison T4 , se compose au RDC d'une entrée placards, WC, salle d'eau, séjour avec coin cuisine ouverte de 33m2 environ, terrasse de 11m2, garage de 17m2 , jardin de 90 m2, parking extérieur privatif, à l'étage 3 chambres avec placards, salle de bain, WC.
Livraison 2ème trimestre 2024

Taxes & charges
Frais d'agence 20000 €
Diagnostics immobiliers
Consommation énergétique
C - 95
Emission de gaz à effet de serre
A - 2
Mise à jour le 18/04/2024
+33 (0)5 59 45 14 32 direction@toutlimmo.net

En poursuivant votre navigation sur ce site, vous acceptez l'utilisation de cookies afin de réaliser des statistiques d’audience. Voir la politique de confidentialité .

Accepter Refuser +