Logotype TOUT L'IMMOBILIER ONDRES

Appartement 3 pièces à St martin de seignanx

APPARTEMENT T3 DUPLEX

Appartement 3 Pièce(s) 217 000 € 66,5m² 3 263 €/m² Réf. 2400
Ce bien vous intéresse ? Contactez-nous !
Description
APPARTEMENT T3 DUPLEX St martin de seignanx

Situé à Saint Martin de Seignanx - Quartier Neuf - Dans une résidence construite en 2013 -
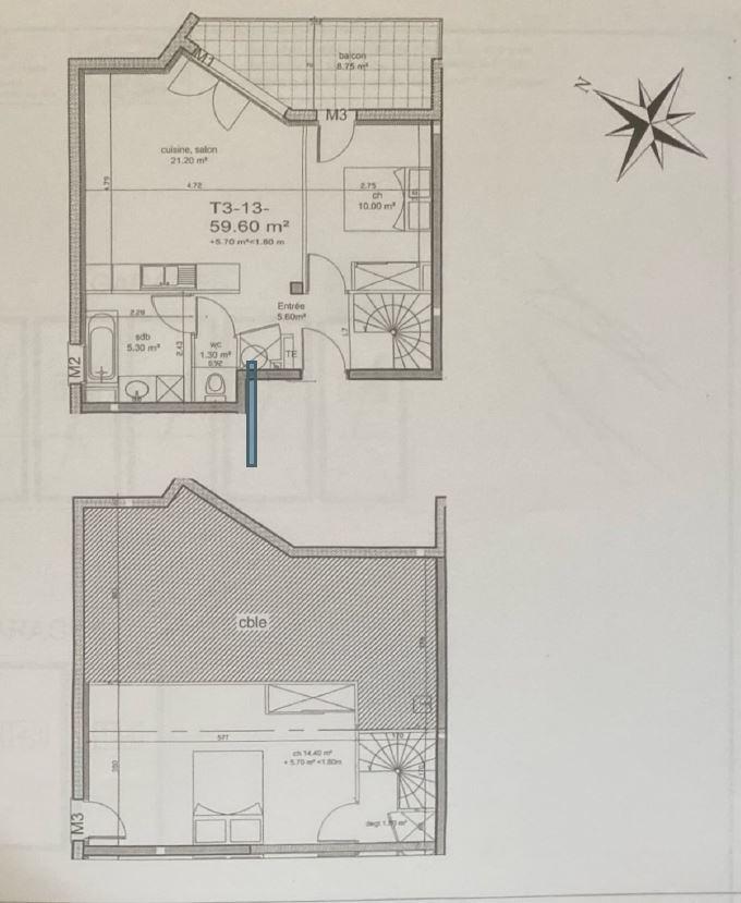
Appartement T3 en duplex de 66m2 environ, situé au premier et dernier étage sans ascenseur,et disposant d'une place de parking extérieure.
Possibilité d'acheter en supplément un garage de + de 17m2
Il se compose d'une antrée placards donnant sur dégagement, un séjour avec cuisine américaine, accés à une terrasse couverte de + de 8m2 exposée Est, une salle de bain, un wc, une chambre avec placards, à l'étage une grande chambre avec placards de 20m2 environ.
A 10 minutes suelement des plages, et moins de 10 minutes de Bayonne, accès autoraute à 5 minutes, cet appartement est déalement situé car vous profiterez également des commerces à pieds.
Coprorpiété de 15 logements - pas de prcédure en cours - Quote part annuelle aux charges de copropriété de 990€

Taxes & charges
Frais d'agence 12000 €
Diagnostics immobiliers
Consommation énergétique
C - 147
Emission de gaz à effet de serre
A - 4
Mise à jour le 03/10/2025
+33 (0)5 59 45 14 32 direction@toutlimmo.net

En poursuivant votre navigation sur ce site, vous acceptez l'utilisation de cookies afin de réaliser des statistiques d’audience. Voir la politique de confidentialité .

Accepter Refuser +